栖凤阁论坛(全国信息)风楼阁全国信息2025登录入口 ,一品qm论坛官网,栖凤阁论坛(全国信息)一品楼qm楼凤论坛内容 ,深圳各区品茶论坛深圳qm新月论坛

欢迎光临~广州市显浩医疗设备股份有限公司
  咨询电话:400-800-8232、13922709440

新闻中心

影像超声X线设备可分为多种类型

添加时间:2025-05-21 13:12         浏览次数:         来源:

影像技术检查、设备管理。医用X线机分为诊断用X线机和治疗用X线机两大类。诊断用X线机的基本结构由X线发生装置和外围装置两大部分组成。X线机的基本结构是,电源-控制装置-机械装置与辅助装置-高压发生装置-X线管装置-X射线。主要人是产生X线,控制X线的穿透能力。辐射强度和曝光时间,根据临床检查需要配装的各种机械装置。

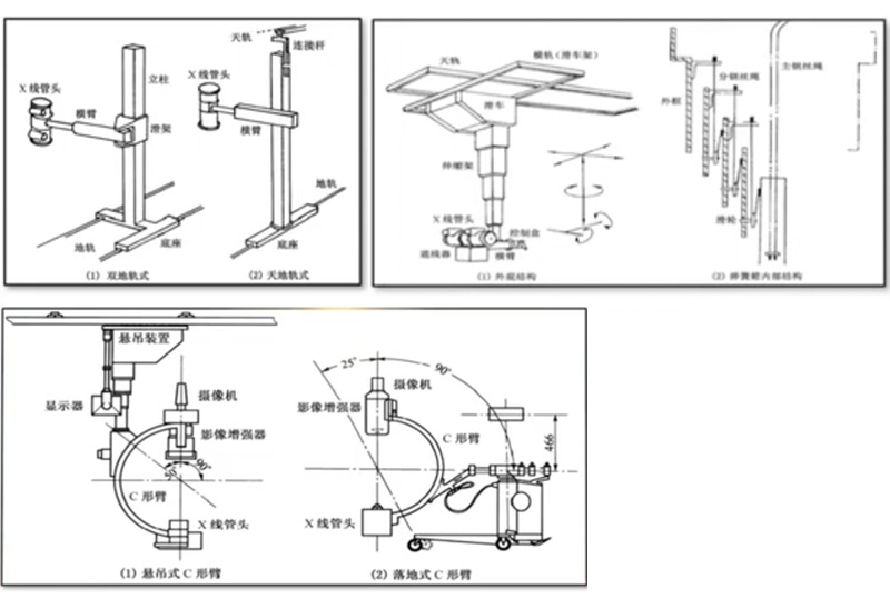
X线机按最大输出功率、高压变压器工作频率、应用范围等可分为多种类型。按X线管标称功率分类,如10kW、20kW等;按管电流大小分类,小型(200mA以下)、中型(200~500mA)、大型(500mA以上)。诊断用X线机按高压变压器工作频率的高低可分为:工频(50Hz/60Hz)中频(400Hz~20kHz)高频(大于20kHz)。普通摄影X线机及其附属装置,X线管组件支持装置。X线管组件支持装置从结构上可以分为落地式、悬吊DR、C形臂式等几种形式。

落地式:分为双地轨式X线管组件支持装置、天地轨式X线管组件支持装置和摄影床一体化式X线管组件支持装置。双地轨式X线管组件支持装置:立柱由两条地轨支持,立柱固定在底座上,底座在双地轨上滑动,带动立柱和X线管组件在双轨道上纵向水平移动。这种立柱支持方式对机房高度无特殊要求,安装方便,缺点是地面轨道较多,显得不整洁。天地轨式X线管组件支持装置:立柱由一条地轨和一条天轨支持,其主体由立柱和连接杆组成。连接杆可上下伸缩,以在一定范围内适应不同高度的房间。天轨不承重,只起支持作用,安装不太复杂,应用较多。这种结构形式地面上只有一条轨道,较为整洁。悬吊式X线管组件支持装置与前面落地式X线管组件支持装置相比,结构复杂、安装难度较大、相对成本较高,但它能充分利用机房上部,具有运动灵活、操作方便、运用范围广的特点,所以特别适用于多功能X线摄影。悬吊式X线管组件支持装置由固定纵向天轨、移动横轨、滑车、伸缩架、横臂、控制盒和X线管组件等组成。为适应各种不同X线特殊检查而设计的,名称因其形状而来。C形臂的一端装X线管头和遮线器,另一端装摄影转换和记录装置如影像增强器、电视摄像机、点片照相机和电影摄像机等。C形臂式可以和悬吊臂式的装置结合,组成悬吊式C形臂支持装置可以与专用底座结合成落地式C形臂支持装置。

导航栏目

?

联系我们

联系人:13922709440 余先生

固 话:86-020-86059537

服务热线:400-800-8232

邮 箱:xianhao266@163.com

公 司:广州市显浩医疗设备股份有限公司

广州总部地址:广州市黄埔区开源大道188号十三栋1301室

湖北公司地址:湖北省钟祥市经济开发区协企联盟园区C6、C7栋